Piasta 152 BUDYNEK B 0 m2
BUDYNEK WIELORODZINNY
Budynek mieszkalny wielorodzinny przy ul. Piasta 152
Budynek mieszkalny wielorodzinny przy ul. Piasta 152
Opis
Ukończony w 2012r. budynek mieszkalny wielorodzinny to nowoczesna, wciąż modna w kolorystyce elewacji, niewysoka czteroklatkowa architektura ze spadzistym dachem, usytuowana na skraju prężnie rozwijającego się osiedla Sybiraków w Białymstoku. Nieruchomość inwestycyjna - Kombinat Budowlany. Projekt - Grupa Projektowa Dominanta. W pobliżu znajdują się nasze dwie kolejne realizacje - Rezydencja Piastowska oraz budynek wielorodzinny przy ulicy Andrukiewicza 6. Atrakcyjna lokalizacja blisko centrum miasta przy jednoczesnej bliskości lasów, łąk oraz ogródków działkowych.
Podstawowe cechy
  • nowoczesna, niewysoka architektura, na uboczu osiedla
  • atrakcyjna lokalizacja
  • 4 kondygnacje naziemne w tym poddasze oraz 1 podziemna z zamykanymi garażami
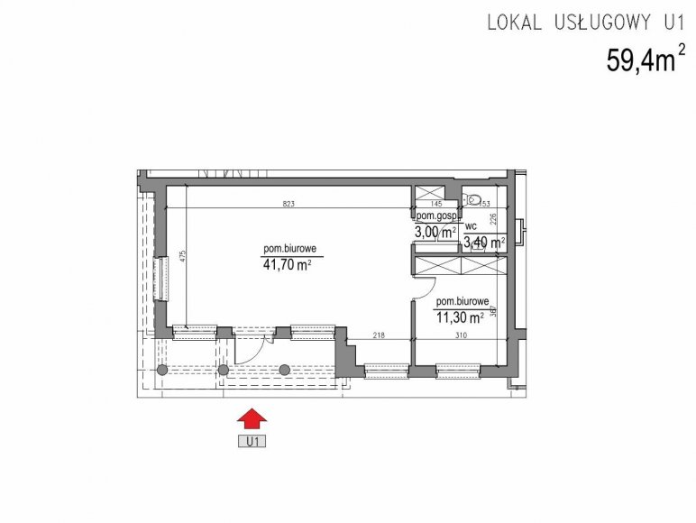
  • lokal usługowy na parterze budynku
  • 43 mieszkania o metrażach od 34m2 do 67m2
  • mieszkania na poddaszu
parametry
ilość kondygnacji4
dźwig osobowynie
powierzchnia użytkowa mieszkańod 34.5 m2 do 67.2 m2
wysokość pomieszczeń2,57

UWAGA: niektóre parametry domu mogą się nieznacznie różnić od parametrów zawartych w projekcie technicznym. Wynka to z konieczności dostosowywania projeków do zmieniających się przepisów Prawa Budowlanego. Dokładamy wszelkich starań aby parametry były aktualizowane na bieżąco.

Autor projektu

mgr inż. arch. Krzysztof Sutuła

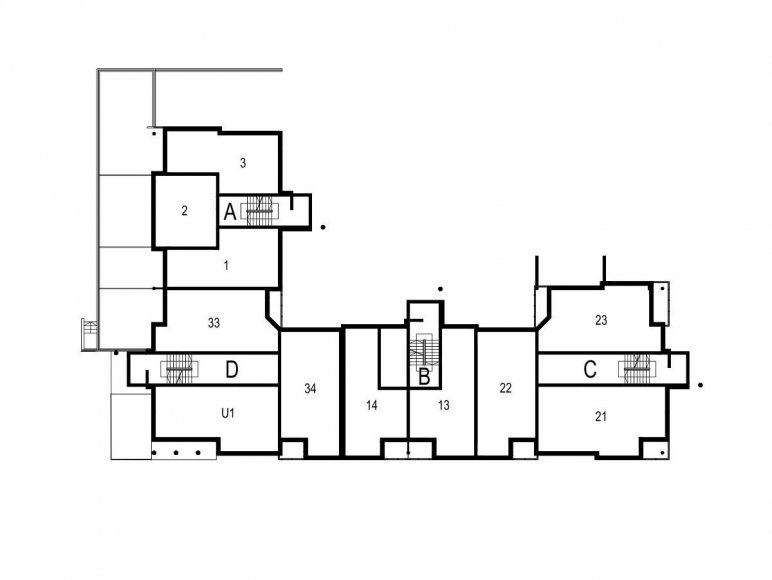
przekrój poziomy piwnic
przekrój poziomy piwnic
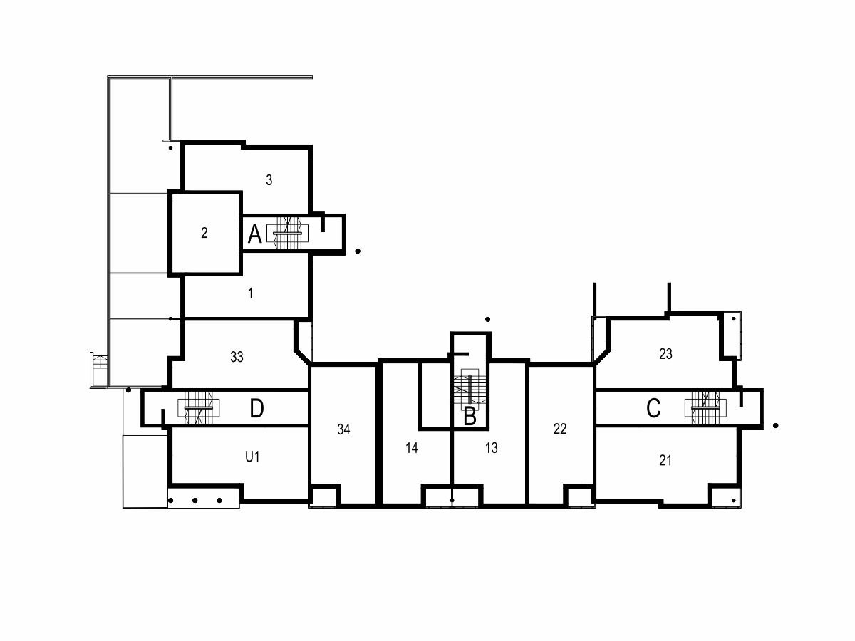
rzut parteru
rzut parteru
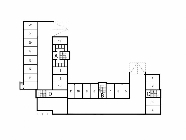
I kondygnacja
I kondygnacja
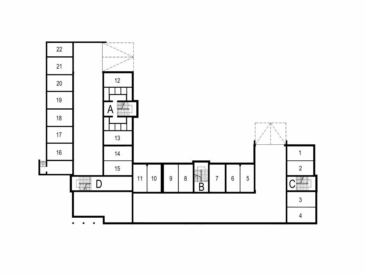
II kondygnacja
II kondygnacja
III kondygnacja
III kondygnacja
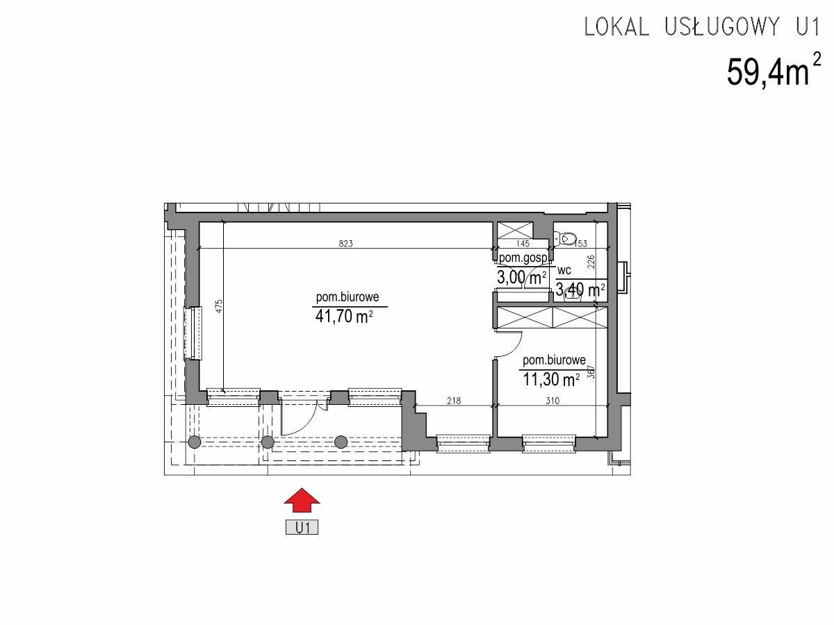
lokal usługowy U1
lokal usługowy U1
przykładowe mieszkania
przykładowe mieszkania

UWAGA: szczegółowe rysunki techniczne są dostępne w panelu bocznym w zakładce DO POBRANIA - pobierz rzuty projektu

zdjęcia
Budynek mieszkalny wielorodzinny przy ul. Piasta 152 - realizacja 1Budynek mieszkalny wielorodzinny przy ul. Piasta 152 - realizacja 2Budynek mieszkalny wielorodzinny przy ul. Piasta 152 - realizacja 3Budynek mieszkalny wielorodzinny przy ul. Piasta 152 - realizacja 4Budynek mieszkalny wielorodzinny przy ul. Piasta 152 - realizacja 5Budynek mieszkalny wielorodzinny przy ul. Piasta 152 - realizacja 6Budynek mieszkalny wielorodzinny przy ul. Piasta 152 - realizacja 7Budynek mieszkalny wielorodzinny przy ul. Piasta 152 - realizacja 8Budynek mieszkalny wielorodzinny przy ul. Piasta 152 - realizacja 9Budynek mieszkalny wielorodzinny przy ul. Piasta 152 - realizacja 10Budynek mieszkalny wielorodzinny przy ul. Piasta 152 - realizacja 11Budynek mieszkalny wielorodzinny przy ul. Piasta 152 - realizacja 12Budynek mieszkalny wielorodzinny przy ul. Piasta 152 - realizacja 13Budynek mieszkalny wielorodzinny przy ul. Piasta 152 - realizacja 14Budynek mieszkalny wielorodzinny przy ul. Piasta 152 - realizacja 15
OSTATNIO NA FORUM

Twoje opinia może być pierwsza!
Zapraszamy na forum

 
Dane techniczne
ul. Wiejska 57 lokal U1
15-351 Białystok
Tel: 85 732 98 62
Kom: 692 369 200
Fax: 85 732 98 62
Email: dominanta@dominanta.pl