Rekreacyjne Osiedle w zielenii BUDYNEK 4 0 m2
BUDYNEK WIELORODZINNY
Projekt wielorodzinny REKREACYJNE OSIEDLE W ZIELENII budynek 4 - wizualizacja 1
Plan osiedla zabudowy wielorodzinnej - REKREACYJNE OSIEDLE W ZIELENII
Projekt wielorodzinny REKREACYJNE OSIEDLE W ZIELENII budynek 4 - wizualizacja 1
Plan osiedla zabudowy wielorodzinnej - REKREACYJNE OSIEDLE W ZIELENII
ten projekt obecnie sprzedajemy w promocji - cena obniżona o 5% projekty w promocji »
UWAGA: promocja dotyczy tylko klientów indywidualnych zamawiających projekt bezpośrednio u nas.
Opis
Przedstawiamy Państwu kolejną część Rekreacyjnego Osiedla w Zielenii. Składający się z 3 budynków etap III prężnie rozwijającego się osiedla wysokiej zabudowy wielorodzinnej przy ulicy Wiadukt w Białymstoku tym razem wprowadza w osiedle trochę koloru, bo elewacje są oliwkowe lub brązowe. Cicha okolica, przy jednoczesnym łatwym i szybkim dostępie do centrum miasta to niewątpliwy atut tego miejsca. W budynkach poprzednich etapów znajdują się wciąż wolne lokale usługowe, sklepy, siłownia itd. Inwestycja - Yuniversal Podlaski.
Podstawowe cechy
  • liczne tereny zielone i lasy
  • bliskość do centrum
  • wysoko rozwinięta infrastruktura otaczająca
  • mieszkania 2, 3 i 4-pokojowe
  • metraże mieszkań od 39 do 76m2
  • w części podziemnej znajdują się: garaże dla samochodów osobowych (wydzielone i zamykane boksy)
parametry
ilość kondygnacji9
dźwig osobowytak
powierzchnia użytkowa mieszkańod 38.69 m2 do 75.54 m2
wysokość pomieszczeń2,52

UWAGA: niektóre parametry domu mogą się nieznacznie różnić od parametrów zawartych w projekcie technicznym. Wynka to z konieczności dostosowywania projeków do zmieniających się przepisów Prawa Budowlanego. Dokładamy wszelkich starań aby parametry były aktualizowane na bieżąco.

Autor projektu

mgr inż. arch. Konrad Burzyński

rzut piwnic
rzut piwnic
rzut parteru
rzut parteru
II kondygnacja
II kondygnacja
III kondygnacja
III kondygnacja
IV kondygnacja
IV kondygnacja
V kondygnacja
V kondygnacja
VI kondygnacja
VI kondygnacja
VII kondygnacja
VII kondygnacja
VIII kondygnacja
VIII kondygnacja
IX kondygnacja
IX kondygnacja
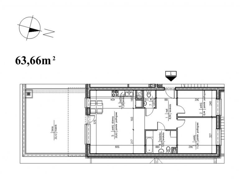
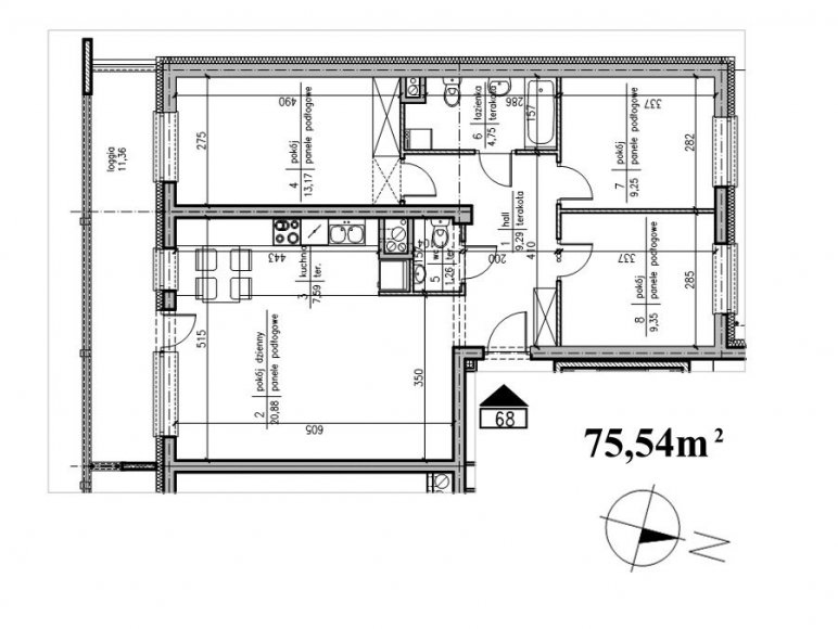
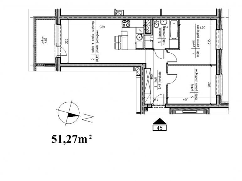
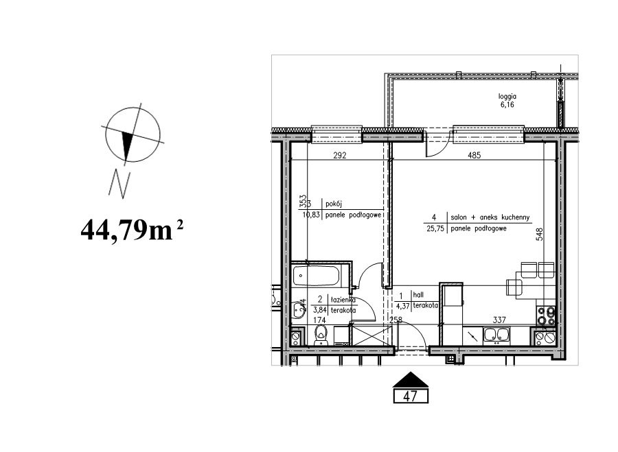
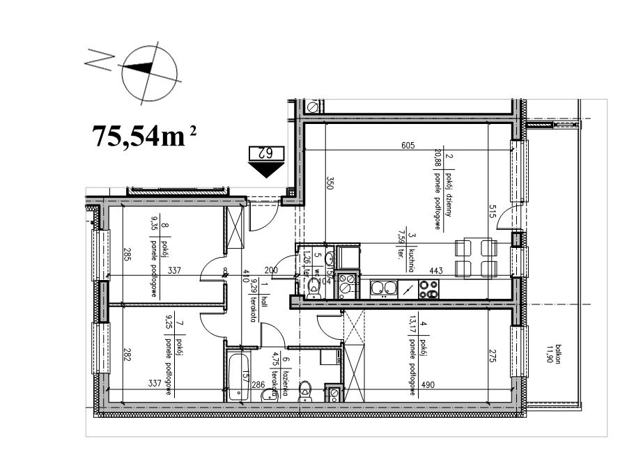
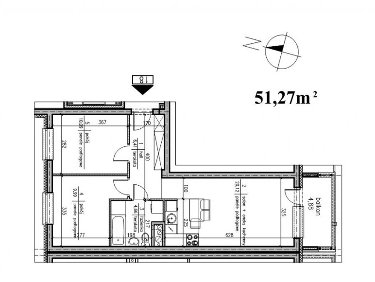
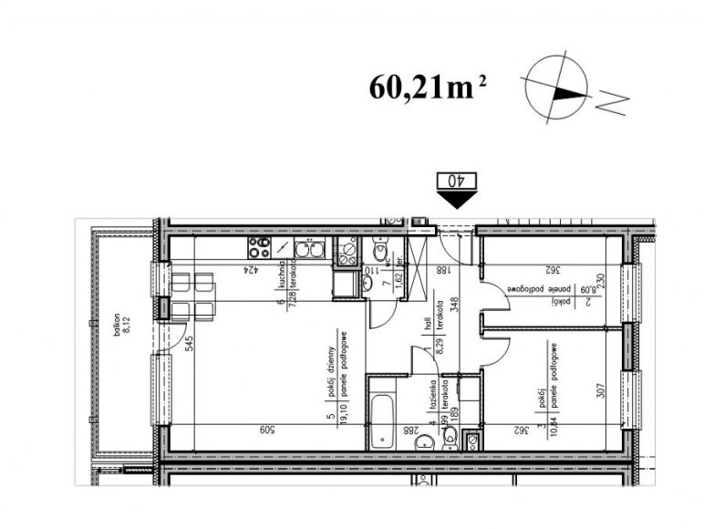
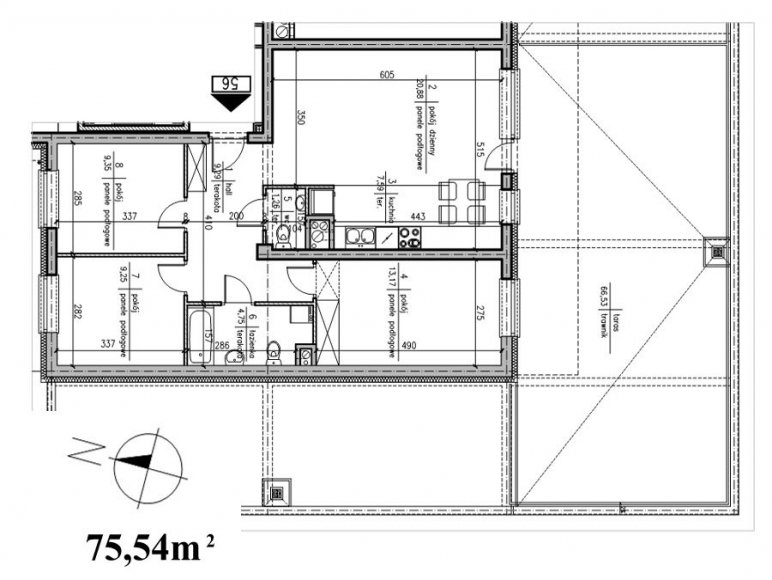
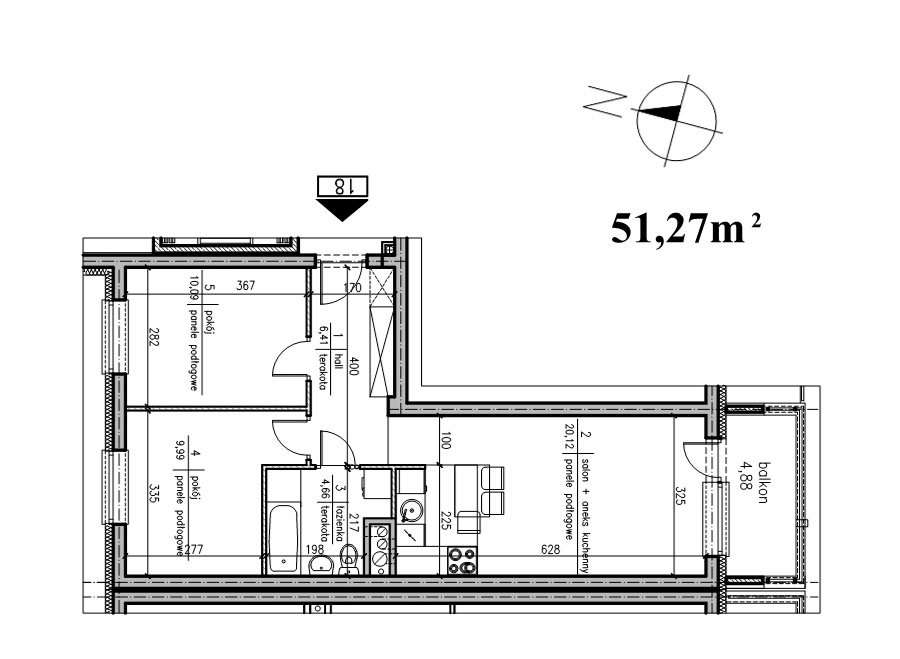
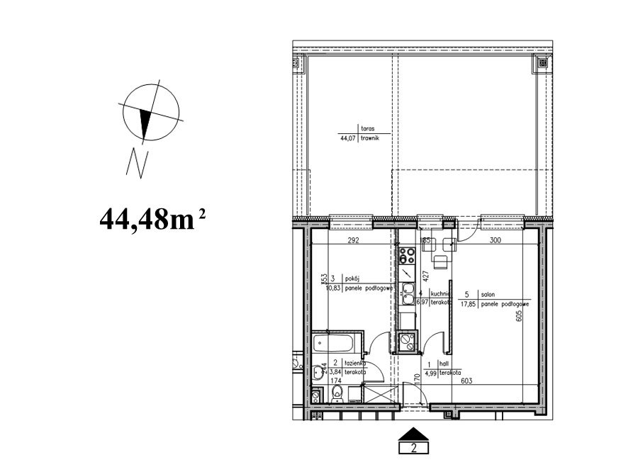
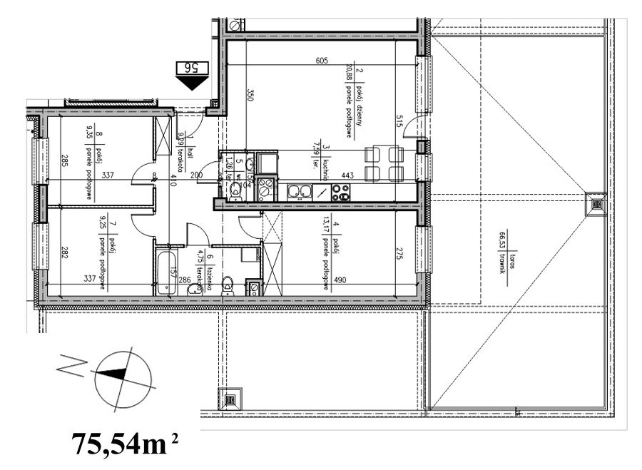
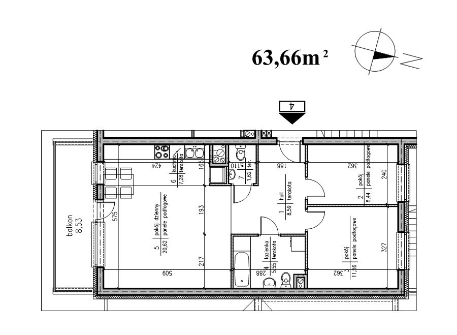
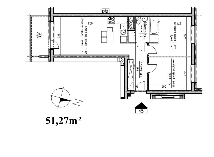
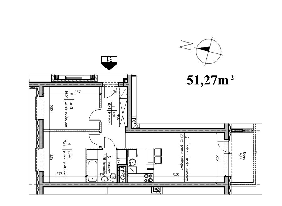
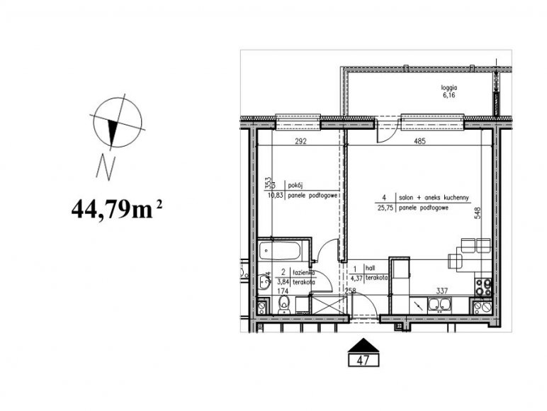
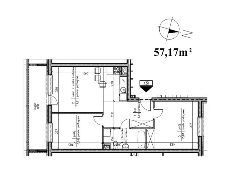
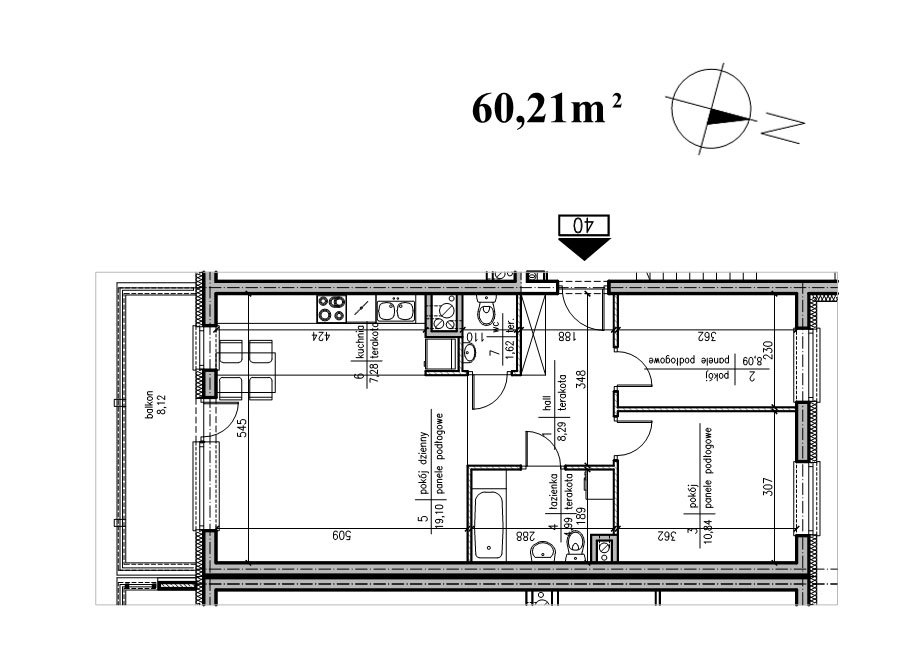
przykładowe mieszkania
przykładowe mieszkania

UWAGA: szczegółowe rysunki techniczne są dostępne w panelu bocznym w zakładce DO POBRANIA - pobierz rzuty projektu

OSTATNIO NA FORUM

Twoje opinia może być pierwsza!
Zapraszamy na forum

 
Dane techniczne
ul. Wiejska 57 lokal U1
15-351 Białystok
Tel: 85 732 98 62
Kom: 692 369 200
Fax: 85 732 98 62
Email: dominanta@dominanta.pl